For Sale £560,000
Aviemore Way, Beckenham

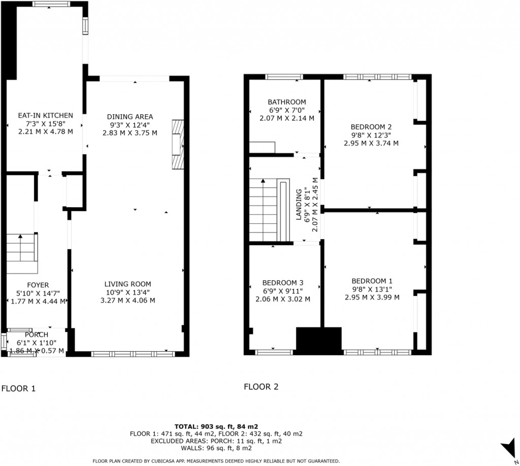
Floorplans For Aviemore Way, Beckenham
EPC For Aviemore Way, Beckenham

Description


Stylish Family Home with South-Facing Garden on Sought-After Aviemore Way, Beckenham

Guide Price: [Add Price] | 3 Bedrooms | South-Facing Garden | Extended Kitchen | Garage + Off-Street Parking

Located on the ever-popular Aviemore Way in the heart of Beckenham, this beautifully presented three-bedroom terraced home combines classic charm with modern family living – all set in one of London’s most desirable boroughs.

Spanning 903 sq ft, this bright and well-laid-out home offers space, comfort, and exceptional convenience, perfect for growing families, first-time buyers, or those looking to upsize in a prime location.

Key Features

  • Bright & Spacious Living Room flooded with natural light – ideal for relaxing or entertaining

  • Open-plan Dining Area flowing seamlessly into an extended Eat-In Kitchen

  • Bi-fold doors opening onto a generous south-facing garden – perfect for summer BBQs and outdoor enjoyment

  • Three well-proportioned bedrooms upstairs – ideal for families or flexible use (e.g. home office)

  • Modern family bathroom

  • Private rear garage with additional off-street access – part of the alleyway is included on the title

  • Potential to extend further (STPP)

Why You'll Love Living Here

???? Leafy, Community-Focused Beckenham BR3
This peaceful, family-friendly street offers a true sense of community while keeping you connected to the city. Beckenham boasts a thriving high street, local boutiques, cozy cafés, and a range of restaurants, all within easy reach.

???? Fantastic Transport Links
Commuters are spoilt for choice with excellent nearby stations:

  • Elmers End Station (0.8 miles) – Rail to London Bridge & Charing Cross + Tram to Croydon & Wimbledon

  • Clock House Station (0.9 miles) – Direct rail to London Bridge, Charing Cross & Cannon Street

  • Beckenham Road Tram Stop (0.6 miles) – Tramlink across South London

  • Numerous bus routes offer further convenience across the area

???? Outstanding Local Schools
Families will benefit from being in the catchment for several highly regarded schools, including:

  • Langley Park Schools for Boys & Girls – Excellent local secondary options

???? Green Spaces on Your Doorstep
Enjoy weekend strolls and outdoor adventures with several beautiful parks nearby:

  • Kelsey Park – Stunning lakeside walks, wildlife, and a charming café

  • Beckenham Place Park – Wild swimming, historic mansion, and events all year round

  • Aldersmead Park – A hidden gem just moments away

A Home That Grows With You

This is more than just a property – it's a place to put down roots, grow your family, and enjoy all that Beckenham has to offer. Whether you're relaxing in the sun-drenched garden, hosting friends in the extended kitchen, or making the most of the excellent schools and transport links, this home ticks all the boxes.

???? Don't miss out – arrange your viewing today and see the lifestyle this home offers firsthand.

For further details on this property please give our office a call
0208 166 0400

ARRANGE A VIEWING

Calculate Your Stamp Duty

£

Results

Stamp Duty To Pay:

Effective Rate:

Tax Band % Taxable Sum Tax

Book a viewing for this property

Simply fill out the form below or alternatively call us on 0208 166 0400

* Mandatory fields