Sold £620,000
Upper Elmers End Road, Beckenham

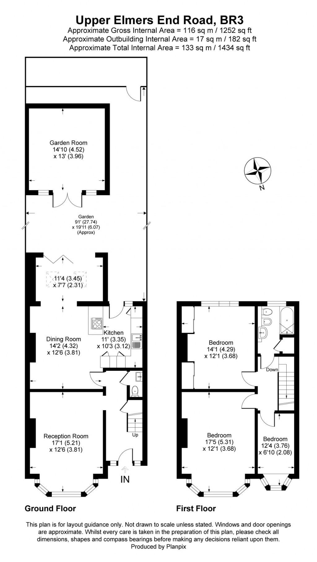
Floorplans For Upper Elmers End Road, Beckenham
EPC For Upper Elmers End Road, Beckenham

Description


A well presented three bedroom extended home located in an ideal location Langley Schools and Eden Park Train Station.

The ground floor offers a spacious lounge room, W.C, extended kitchen/diner with a newly fitted kitchen. 

The first floor offers two double bedrooms, a spacious single bedroom and a family bathroom.

The property also benefits from a lovely south facing rear garden, a garden room/workshop plus a double garage with access at the rear for parking.

The property is situated within easy access to local shops, cafes and restaurants with bus routes to crystal Palace, West Wickham, Beckenham, Bromley and Oprington and Train links to London Bridge and Charing Cross.

-Gas central heating

-Double glazing

-Garden room/workshop

-Double garage

-South facing garden

For further details on this property please give our office a call
0208 166 0400

ARRANGE A VIEWING

Calculate Your Stamp Duty

£

Results

Stamp Duty To Pay:

Effective Rate:

Tax Band % Taxable Sum Tax

Book a viewing for this property

Simply fill out the form below or alternatively call us on 0208 166 0400

* Mandatory fields